グランドピアノのある家
設計趣旨
すべての部屋から庭が見えることを希望されているので、敷地全体に視線が向くようなプランにし、しかし外からは中が見えないように配慮しました。その結果、カーテン、ブラインドを使わないで生活
できる家ができました。今までの家は、昼間でも、外の視線を遮る為に、レースのカーテン等をしなければいけませんでした、それは中からの視線も部屋内でさえぎっていたのです。
今回、さえぎるカーテンはないので、面積以上の広がりがあります。
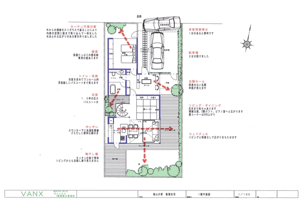
配置について
道路側に駐車場2台+来客用の車寄せを取り、東と南に大きく庭が取れるようにしました。
プランについて
道路からは門扉なしで駐車場兼用のアプローチで玄関に至ります。
リビングに回り階段がついています。玄関と対面にならないようここにつけました。
また、階段の2階部分に扉をつけ、冷暖房にも配慮しました。
畳コーナーは400上がり。広がりを出すため、障子等では仕切っていません。
トイレ、洗面はワンルームにして、広く使えるようにしました。
浴室とも、ガラスで仕切られているので、バスコートの光が十分入ります。
バスコートに出られるように、ウッドデッキを敷きました。
2階トイレは客用と紙、少し広めにしました。
和室は8帖と6帖の続き間です。押入も1間半あり、家族の布団もここに収納できます。
東側窓は、掃きだし窓にし、外の植栽を見ていただき、開放感を出しています。
少しのロフトでもあると、リビングに広がりを出します。
そして、玄関は床に段差がありません。東側の窓も床から天井まであり、外部も部屋内に取り込みました。
また玄関専用の庭なので、いつもきれいに保つことができます。ほとんどのお客さんが、ここまでしか入りません。ここをモダンに仕上げると、第一印象はよくなるでしょう。
玄関ホールからすぐリビングに入ります。入ったところは畳コーナーでその先にリビング・ダイニング・キッチンが広がります。そこは吹き抜けていて、ロフト、2階ピアノ室との一体空間になっています。
キッチンはI型対面式。後ろには幅600のカウンター。ここに家電等をまとめると、使いやすいでしょう。
回り階段とも、スリガラスで仕切っているので、光あふれる雰囲気です。
寝室は1階北側にしました。ここは、遮光のためのブラインドをお勧めします。庭の植木に照明で照らせば、夜も雰囲気がいいでしょう。
回り階段を上がると、ホール兼ピアノ室です。リビングと視線でつながっていますが、ガラスで仕切っ
て、音があまり響かないようにしました。
ここは、東にウッドデッキ、西に窓、南にリビング吹抜け、北上に窓と四方開放されています。グラン
ドピアノを置いても、狭さは感じさせないでしょう。
※住宅プランニングサービス(無料)を受けて見たい方は、こちらへどうぞ。
